LG-GİYOTİN SERİSİ

LG-GİYOTİN SERİSİ

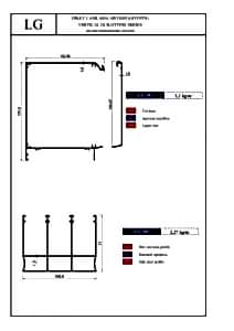
Camlama sistemlerinin çalışma şekillerinden farklı olarak, paneller otomasyon yöntemi ile dikey çalışması sonucu açılıp kapanan sistemdir. Alt panele bağlı zincir veya kayışım bağlı olduğu motor, sistem kumanda kontrol düğmelerinin komutu ile aşağıya veya yukarıya doğru çalışır. Genellikle bu sistemler temizlik sebebi zemin katlara uygulanır. Geliştirilmiş yeni yöntemler ile bu sistemin temizlik sorunun çözümüne yardımcı olup , balkon teras gibi alanlarda kullanılabilir duruma getirmiştir. kullanım amacına bağlı olarak  ; 8 mm cam uygulama , ısıcam uygulama, pivot (açılabilir orta panel) ve vasistas( açılır alt panel) uygulamaları gibi seçenekler sunar.

Uygulama Videoları

Fotoğraf Galerisi

Sistem Bilgileri

Sistem çalışma şekli; Panellerin Kumanda  veya buton yüzeyinde bulunan kontrol düğmeleri yardımıyla sistemin aşağıya veya yukarıya doğru harekeyi ile açılır.

Kullanım alanları ; geçiş alanı bulunmayan  balkon, teras, kış bahçesi

Kullanılabilir renk seçenekleri; Rall Boyalı , Ahşap kaplama

Kullanılabilir cam seçenekleri; Darbeye ve kırılmaya karşı dayanıklı 8mm veya 20mm kombinasyonlu ısıcam

Mekanizma seçenekleri ; çelik alaşımlı zincirli sistem ve Poliüretan kaplama çelik telli kayışlı sistem

Temizlenebilir Sistem ; Orta panel açılır Pivot mekanizma veya alt panel açılır vasistas sistem

Motor seçenekleri ; 120 NW kendinden veya harici alıcılı 70mm tüp motor

Whatsapp İletişim Whatsapp İletişim